Les Carillons - Arts District Gem nLarge Groups Welcome! Pool! Elevator! | House in New Orleans

5 Bedroom House in Arts/Warehouse District, New Orleans
Huge Home - Lots of Room. 17 beds! Contact LeeAnn with questions.
Les Carillons is a gorgeous four story, 5000 sq. ft. home located in the Historic Arts Section of the Warehouse District, adjacent to the Central Business District and only seven enjoyable blocks to the French Quarter. Check us out at Arts District Gem.
NEW! We are happy to open our pool and courtyard to you.
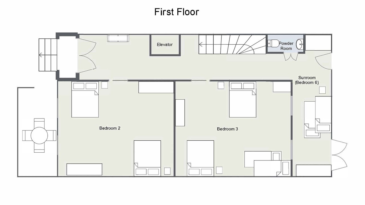
This home features five bedrooms and four and a half bathrooms and a beautiful balcony and a front patio that are perfect for relaxing during your stay. Additionally, this home has an elevator that will allow those who have difficulty with stairs to easily move between floors. With Greek Revival architecture and a touch of Italian influence, this circa 1845 house is a traditional New Orleans style home that stands out amongst the modern architecture of the Downtown surroundings. It’s truly a gem, with wonderful decorative touches throughout and plenty of space to stretch out. Beautiful shiny hardwood floors, tall ceilings and windows, and layer upon layer of crown molding create an ambiance you have to see to believe. Best of all, the renovations to the house are new. It’s a perfect rental for large families and groups. Equipped with wireless internet, a washer/dryer, and a beautiful balcony in addition to the first floor patio, this house provides you with everything you need to live luxuriously during your stay. You will be given your own private key code for entry to the house upon arrival, and we guarantee you will feel like New Orleans Royalty as soon as you walk through the front door. One off- street parking space is provided for your mid-or-compact sized vehicle; additional parking is available for $20 - 30 per day next to property.
This house is located only a few short walking blocks to the French Quarter, Canal St., Bourbon St, the Convention Center and the Mississippi River as well as many of the best restaurants, art galleries and other famous New Orleans attractions. It’s minutes from the famous Superdome, home of the New Orleans Saints as well as the Sugar Bowl. Conveniently located one block from the Mardi Gras parade route and for Jazz Fest as well. So please, make us your accommodation of choice during your visit to the Big Easy. We assure you, you'll be glad you did! Looking forward to seeing you!
Les Carillons - Arts District Gem nLarge Groups Welcome! Pool! Elevator! is located in Arts/Warehouse District. Les Carillons - Arts District Gem nLarge Groups Welcome! Pool! Elevator! provides accommodation, featuring Pet Friendly, Wheelchair Accessible, Entertainment, among other amenities. This House features Pet Friendly, Wheelchair Accessible, Entertainment, to make your stay a comfortable one.
Les Carillons - Arts District Gem nLarge Groups Welcome! Pool! Elevator! has 5 Bedrooms , 4 Bathrooms, and max occupancy of 10 people. The minimum rental for this property is 1 nights, but this can change depending on the season you plan on staying. Previous guests have given good rated it, and VRBO labeled it a top-rated House because of the excellent services rendered by the owner or manager of this House, and has consistently provided great experiences for their guests. Most families or guests that use it recommend it to their friends and some of them are repeat guests. House has a friendly neighborhood, and the Arts/Warehouse District has interesting places to visit. If you want to learn more about the House in Arts/Warehouse District, such as places to visit and things to do nearby, you can check below to learn more.
Amenities
Policies
Extra-person charges may apply and vary depending on property policy government-issued photo identification and a credit card, debit card, or cash deposit may be required at check-in for incidental charges host has indicated there is a carbon monoxide detector on the property host has indicated there is a smoke detector on the property onsite parties or group events are strictly prohibited property registration number 22-cstr-06273, 22-ostr-06287 safety features at this property include a fire extinguisher, a first aid kit, and a deadbolt lock special requests are subject to availability upon check-in and may incur additional charges; special requests cannot be guaranteed this property has outdoor spaces, such as balconies, patios, terraces which may not be suitable for children; if you have concerns, we recommend contacting the property prior to your arrival to confirm they can accommodate you in a suitable room this property is managed through our partner, vrbo. you will receive an email from vrbo with a link to a vrbo account, where you can change or cancel your reservation