Charming Renovated 1922 Bungalow in Heart of Yachats Village | House in Yachats

2 Bedroom House in Yachats
This historic 1922 bungalow in the heart of Yachats village was restored from the foundation up, started in 2010 and completed in 2012. It's located at 362 W. 2nd Street and as the name says, everything is just a “stone’s throw” away. You’re just two doors down from Yachats’ State Park where you can whale watch, play frisbee, or wander down to the rocky marine preserve where tide pools and agates abound. Watch flocks of pelicans wheel by, as otters and seals peek from the surf. When the tide is low, you can walk all the way down to where the 804 trail meets the ocean at the Adobe, and from there it is just another short walk along the 804 to the sandy beach – seven miles of it.
Or, head into town, just two blocks away, where you’ll find restaurants like Heidi’s Homemade Italian and the Drift Inn or head down to the Wine Place for some fine wine tasting. Enjoy some of the many events held at the Yachats commons, or wander through the farmer’s market in front of the commons on a Sunday morning. If you have kids with you, you’ll find a playground just behind the commons with the best tree house on the coast. Just a block and a half from your doorway, you’ll find the Little Log Church, now a historical museum, or wander over to Toad Hall or Rain Dogs for some gift shopping. And for breakfast and the best locally roasted coffee, we recommend The Green Salmon, just two blocks from your doorstep.
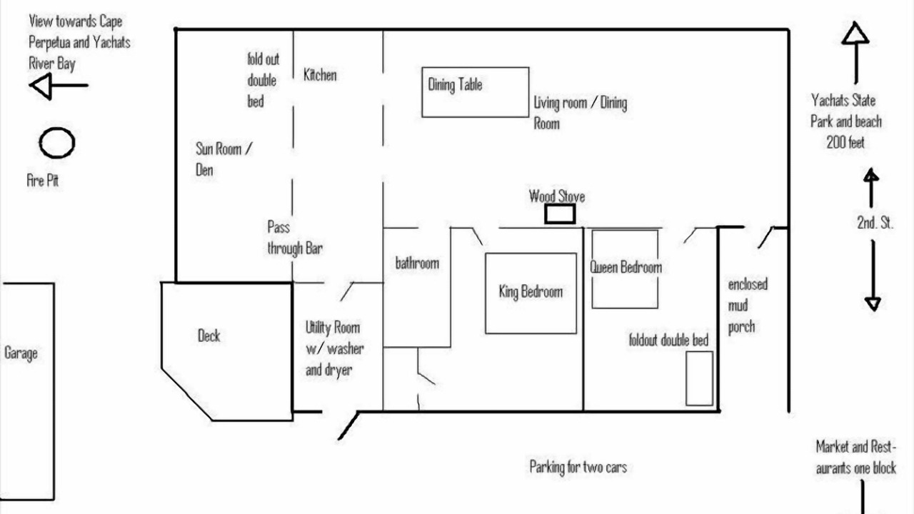
If you want to stay inside, you’ll find retro charm and modern comfort. A wood-fired stove warms the living room, next to a sofa and two easy chairs and a bookcase full of everything from mysteries to classics. There’s even a piano for the musically inclined. One bedroom features a queen bed, the second, a king, four-poster bed, mood lighting and a faux fireplace for warmth and atmosphere. There's also a fold-out double in the den, so the house sleeps a total of six. The dining area seats 6 to 8, or head into the kitchen and enjoy the great view from the retro bar. The kitchen is fully equipped for cooking and entertaining, including a microwave. And beyond that, the den opens up on an incredible view through four large picture windows. Enjoy the sight of Cape Perpetua as the sun sinks toward the sea. Relax in the cozy sofa or armchair and watch TV or one of the many DVD’s on hand. There are plenty of board games and puzzles in the den as well. The bathroom is also fully remodeled with a roomy, tiled shower and bath tub (and a great shower head!).
This little gem of a house is a unique property. The historic Yachats village neighborhood comprises just a few square blocks, and this is one of the few remaining original bungalows restored to its former glory. Unlike many properties, no driving is required once you park your car! It’s great for a couple seeking a romantic weekend close to everything, for a family with kids looking for some easy, family fun, or two couples enjoying a joint vacation. It sleeps four comfortably in the first bedroom, two in the den, and two in the second bedroom (you can fight over who gets the king-sized bed). Whatever your requirements, give Stones Throw Bungalow a try, and we promise you’ll enjoy your stay.
Keywords: walking, coastal, hide-away, ocean, tide, pools, restaurants, view, fireplace, fire pit, trail, close, state park
Charming Renovated 1922 Bungalow in Heart of Yachats Village is located in Yachats. Charming Renovated 1922 Bungalow in Heart of Yachats Village provides accommodation, featuring Balcony/Terrace, Bedding/Linens, Internet, among other amenities. This House features Balcony/Terrace, Bedding/Linens, Internet, to make your stay a comfortable one.
Charming Renovated 1922 Bungalow in Heart of Yachats Village has 2 Bedrooms , 1 Bathroom, and max occupancy of 6 people. The minimum rental for this property is 1 nights, but this can change depending on the season you plan on staying. Previous guests have given good rated it, and VRBO labeled it a top-rated House because of the excellent services rendered by the owner or manager of this House, and has consistently provided great experiences for their guests. Most families or guests that use it recommend it to their friends and some of them are repeat guests. House has a friendly neighborhood, and the Yachats has interesting places to visit. If you want to learn more about the House in Yachats, such as places to visit and things to do nearby, you can check below to learn more.
Amenities
Policies
Extra-person charges may apply and vary depending on property policy government-issued photo identification and a credit card, debit card, or cash deposit may be required at check-in for incidental charges host has indicated there is a carbon monoxide detector on the property host has indicated there is a smoke detector on the property onsite parties or group events are strictly prohibited safety features at this property include a fire extinguisher and a deadbolt lock special requests are subject to availability upon check-in and may incur additional charges; special requests cannot be guaranteed this property is managed through our partner, vrbo. you will receive an email from vrbo with a link to a vrbo account, where you can change or cancel your reservation